Iglo Edge
Technology That Impresses
About Iglo Edge Windows
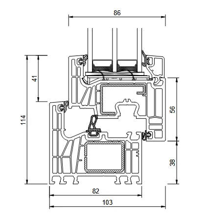
Iglo Edge is the latest and most technologically advanced window system in our offering. With a Uw = 0.66 W/(m²K)* insulation rating, this unit delivers an excellent level of energy efficiency. The seven-chamber profile system, combined with three double EPDM gaskets, including the central gasket, ensures top-notch insulation. These features will help you minimize heat loss during the cold season, improving the comfort of your home and cutting your energy bills. Besides outstanding functionalities, the Iglo Edge window features modern, angular profiles, establishing a clean and contemporary look that suits any interior style.
Standard Equipment:
- Triple-glazed unit with Ug = 0,5 W/(m2K) for advanced thermal insulation
- Swisspacer Ultimate warm-edge spacer for heat loss reduction
- V-perfect weld for high-precision corner finish
- Four anti-theft locking point mechanism for additional security
- Built-in microventilation
- DUBLIN aluminium window handle
- Handle lock for correct operation
- Perimeter, glazing, and central gaskets are available in black and grey
- The lower hardware groove is filled for enhanced protection
- Sill trim secures a finished look
- Wide selection of PVC veneer color options
PVC window colour range
Choose the colour that suits you Over 30 veneer colours to choose from.
Add this product to your List
Compare products
Our Projects
View AllRequest A Quote
Please feel free to contact us to request a quote.